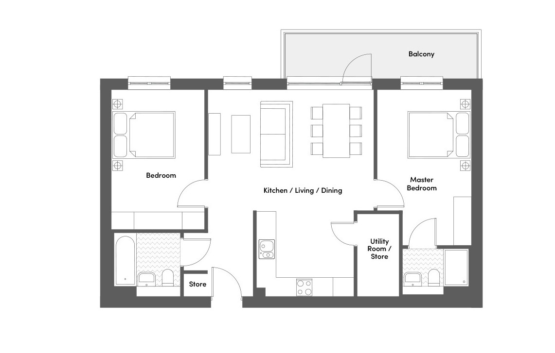
A clever layout, with 2 large double bedrooms, a well designed and flexible living area, private balcony and plenty of storage. All feature high quality kitchens and bathrooms, and bespoke U fit-out.
text
U Citywest Quarter
About the area
Escape the chaos of the city without sacrificing schools, shops, cafes bars and restaurants. Citywest Shopping Centre is across the road, and The Square shopping centre a short trip on the Luas. The local area is spoilt for choice of sports clubs and leisure amenities.
View moreFully let

