• U Bancroft

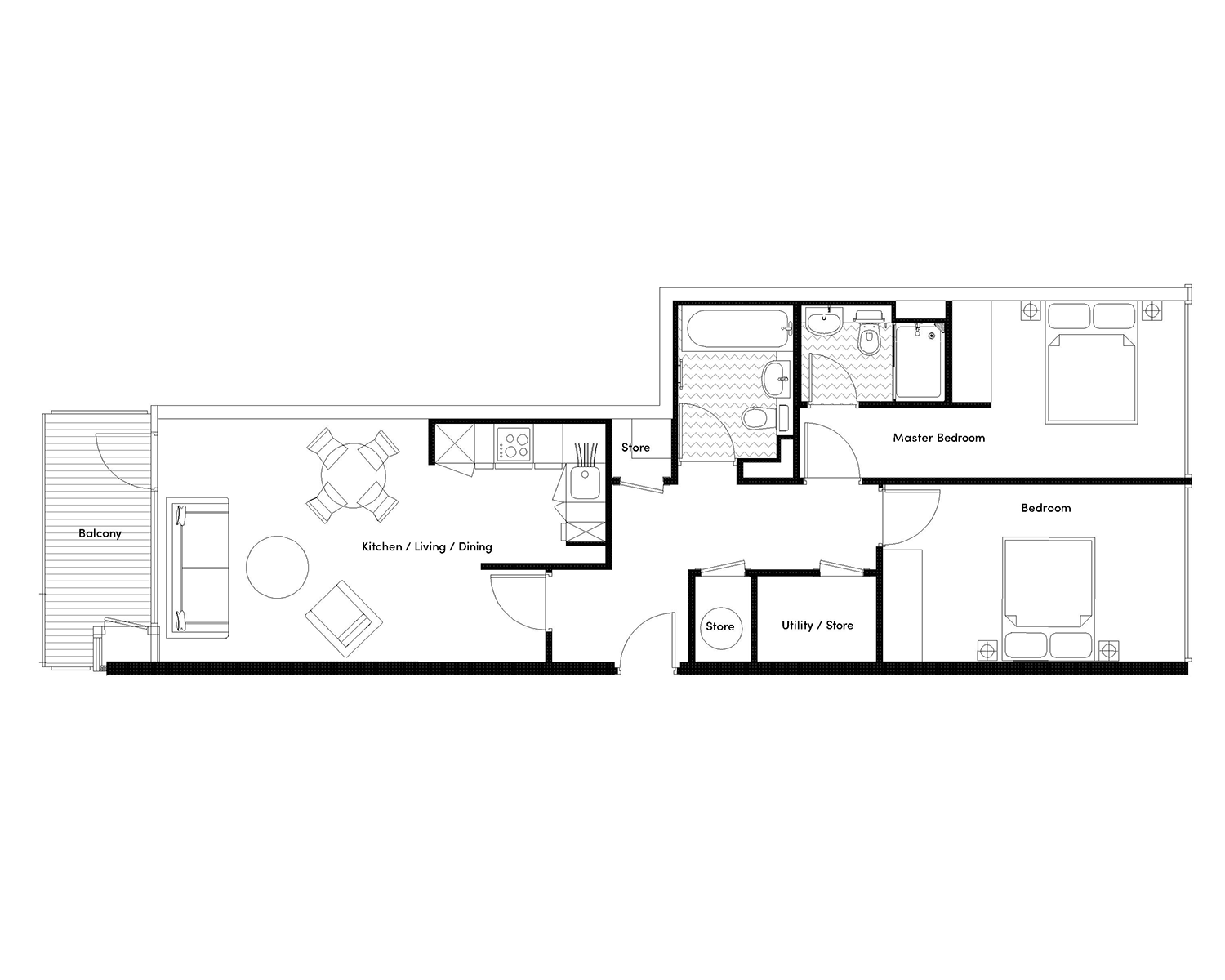
    2 Bedroom Apartment
    Prices from €1,895 pm
    Header Image
    Header Image

2 double bedrooms, a well designed and flexible living area, private balcony and plenty of storage in these units. All are double aspect and feature quality specification throughout, including integrated appliances.

text

U Bancroft

About the area

Amenities local to U bancroft include over 160 stores in The Square, a UCI cinema, Tallaght University Hospital, The Civic Theatre, Tallaght Stadium and the National Basketball arena. A great choice of good schools and local sports clubs are also conveniently located.

View more